About Pranava's Temple Square

Your Gateway to a Better Future, An Overview of Yadadri's Newest Project

Temple Square is an exclusive residential project in Yadadri that promises a luxurious and comfortable lifestyle.

Our project facing the Warangal highway, is designed to provide you excellent return on investment with its prime location.

So, whether you're looking for a profitable investment or a place to call home in Yadadri, Temple Square is the perfect choice for you.

Project Highlights

Grand Entrance Arch

21 Acres

100% Vastu

CC Roads

Children play Area With Equipments

Half Basketball Court

Jogging Track

Avenue Plantation

Amphitheater

Fitness Station With Equipments

Footpaths

Underground Electricity

Green Parks

Overhead Tank

24x7 CCTV Surveillance

Seating deck

Street lights

Underground Drinage

Cricket Pitch

Sump

Why Invest In Temple Square?

Temple Square by Pranava Group offers modern living with exceptional returns. Approved by RERA, it guarantees significant financial gains. Situated along the Hyderabad-Warangal route in Yadagirigutta, Telangana, this rapidly growing town in Yadadri Bhuvanagiri district is a hotbed for investment.

The area features seamless connectivity to Raigiri, Aler, and Bhuvanagiri and benefits from the government’s focus on making the Yadadri temple a significant tourist destination.

As Yadagirigutta evolves into an economic hub, Temple Square provides mixed-community plots with premium amenities. Invest now in Temple Square and secure a profitable and comfortable future.

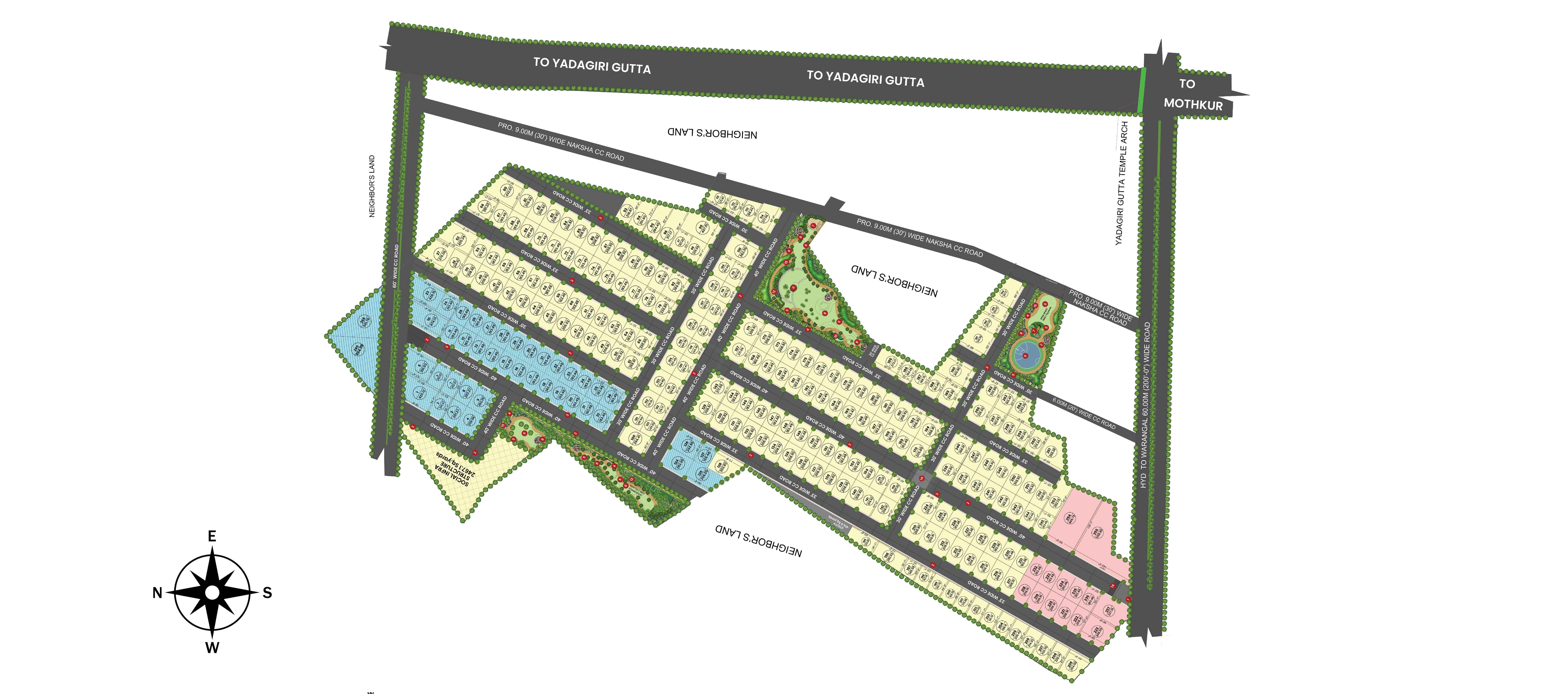
Plot Layout

Location Highlights

Collectorate Office - 2 Minutes Away

Yadadri Temple - 5 Minutes Away

Surendrapuri Theme Park - 5 Minutes Away

Kendriya Vidyalayam - 5 Minutes Away

Proposed RRR - 5 Minutes Away

Bhuvanagiri Town - 10 Minutes Away

AIIMS, Bibinagar - 15 Minutes Away

MMTS Train Secunderabad to Yadadri (Future Development)

CONTACT FORM